Husanalys
Objekt
Klar
Se annonsen på
Dokument
4/8 hittade
Dom här dokumenten har vi identifierat och använder för analysen. Du kan manuellt ladda upp dokument som saknas så gör vi om analysen.
Demografi
Klar
Vilka är det som bor i området?
Vilka är det som bor i området? Vi har analyserat 348 hushåll i närområdet.
Hushåll
Boende
25,0%
I Sverige består 48,6% hushåll av en vuxen
70,4%
I Sverige bor 45,5% hushåll i en parrelation
50,6%
I Sverige har 28,7% hushåll minst ett barn
5,7%
I Sverige hyr 29,9% hushåll sitt boende
0,0%
I Sverige äger 20,1% hushåll bostadsrätt
92,2%
I Sverige har 47,3% hushåll äganderätt
Inkomst
Andel av hushåll som klassas som låginkomstagare, under medelinkomstagare, över medelinkomstagare eller höginkomstagare.
Personer
Demografi
50,1%
I Sverige har 46,7% studerat efter gymnasiet
85,1%
I Sverige har 79,7% 20-65 år en anställning
15,1%
I Sverige är 27,2% födda utrikes eller har två föräldrar födda utrikes
Ålder
Andel personer i ålderskategorier under 25 år, 25-45 år, 45-65 år och över 65 år.
Politik
I senaste riksdagsvalet röstade man Borgerligt.
Riksdagsvalet
Buller
Klar
Hur är ljudmiljön vid fastigheten?
Bullerkarta
Uppskattade bullernivåer
53
dB utomhus
28
dB inomhus
stängda fönster
40
dB inomhus
öppna fönster
Beskrivning
Huvudsaklig bullerkälla är den närliggande motorvägen (E20) norr om fastigheten samt lokal trafik på Floda allé och den närliggande rondellen. Området är i övrigt ett lugnt bostadsområde, men trafikbuller kan vara hörbart, särskilt utomhus eller vid öppna fönster.
Bullernivåerna är uppskattningar baserade på satellitbilder och kan avvika från faktiska mätningar. Värden anges i LAeq (ekvivalent ljudnivå).
Luftkvalitet
Klar
Hur är luftkvaliteten vid fastigheten?
Mycket bra luftkvalitet
Luftkvaliteten vid adressen är mycket bra utifrån SMHI:s modellerade årsmedelvärden. Samtliga föroreningar ligger tydligt under 50% av dagens EU-gränsvärden och även under de kommande (strängare) 2030-nivåerna.
Luftkvalitetskartor (2030-direktivet)
NO₂ (Kvävedioxid)
PM10 (Partiklar)
PM2,5 (Fina partiklar)
Föroreningsnivåer (årsmedelvärden)
NO₂ (Kvävedioxid)
3,5 µg/m³
Nuvarande gränsvärde: 40,0 µg/m³
8,7% av gränsvärdet
2030 gränsvärde: 20,0 µg/m³
17,4% av gränsvärdet
PM10 (Partiklar)
9,0 µg/m³
Nuvarande gränsvärde: 40,0 µg/m³
22,5% av gränsvärdet
2030 gränsvärde: 20,0 µg/m³
45,0% av gränsvärdet
PM2,5 (Fina partiklar)
5,9 µg/m³
Nuvarande gränsvärde: 25,0 µg/m³
23,8% av gränsvärdet
2030 gränsvärde: 10,0 µg/m³
59,4% av gränsvärdet
Hälsopåverkan
De modellerade nivåerna av NO₂, PM10 och PM2,5 är låga, vilket generellt innebär liten risk för luftvägsbesvär kopplade till långvarig exponering för dessa föroreningar. Känsliga grupper (t.ex. astma/KOL, hjärt-kärlsjukdom) kan ändå uppleva besvär vid enstaka dagar med högre partikelhalter, men årsmedelnivåerna tyder på en gynnsam boendemiljö.
Jämförelse med 2030-direktivet
Platsen klarar även de kommande 2030-gränsvärdena för alla tre föroreningar. Närmast 2030-nivån ligger PM2,5 (cirka 59% av 10 µg/m³), vilket speglar att en stor del av de fina partiklarna ofta kommer från regional bakgrund (långväga transport) snarare än lokala källor.
Data från SMHI:s nationella modellering av luftkvalitet. Värden är modellerade årsmedelvärden och kan avvika från faktiska mätningar. Källa: natmodluft.smhi.se
Översvämning
Klar
Vad är risken att huset drabbas av översvämning?
Skyfallskarta
Risknivå
LågMaximalt vattendjup
0,05 m
vid 100-årsregn
Analys
Fastigheten är belägen på en sluttning där marknivån sjunker från nordost mot sydväst. Topografiska analyser och flödesmodeller visar att ytvatten vid extrema skyfall huvudsakligen rinner förbi och bort från fastigheten, ned mot lägre liggande områden i väster (nära motorvägen). Fastigheten ligger utanför de zoner som identifierats ha risk för översvämning vid ett 100-årsregn, vilket indikerar att risken för stående vatten på tomten är minimal.
Rekommendationer
Eftersom översvämningsrisken bedöms som låg behövs inga omfattande översvämningsskydd. Det rekommenderas dock alltid att säkerställa god lokal avrinning genom att hålla hängrännor och stuprör fria samt att kontrollera att marken närmast husgrunden lutar bort från byggnaden.
Analysen baseras på topografiska data och satellitbilder. Lokala dräneringssystem och markförhållanden kan påverka den faktiska risken.
Byggprojekt i området
Klar
Vad byggs eller planeras i närheten som påverkar fastigheten?
Sammanfattning
Runt Floda allé 25 pågår flera större plan- och infrastrukturprocesser som kan förändra området tydligt de kommande åren. Tyngdpunkten ligger på (1) ny bostadsbebyggelse i och nära centrum (Floda torg) och (2) omvandling/utbyggnad kring Flodamotet/E20 (Högavägen och Växthustomten), samt (3) kommunens arbete med att ta över och utveckla vägar/allmän plats i Floda (kommunalt huvudmannaskap) och bygga ut gång- och cykelstråk. Därtill finns ett långsiktigt planprogram för Södra Floda med mycket stor bostadstillväxt (ca 1000 bostäder) som kan ge mer service men också mer trafik och byggperioder. Enstaka bygglov för villor/tillbyggnader förekommer men är i sammanhanget mindre påverkan jämfört med ovanstående.
Viktiga projekt
- Bostäder och centrum vid Floda torg (ca 140 bostäder + utökad livsmedelshandel, levande bottenplan)
- Växthustomten: omvandling från verksamhetsmark till bostäder (även förskola/äldreboende/parkering i utredning) – planen antagen men överklagad; upphandling för allmän plats/VA och GC-väg vid Örnevinges väg
- Bostäder och verksamheter utmed Högavägen vid Flodamotet (bostäder + bred verksamhetsmix; samråd planeras 2027)
- Ombyggnation/etapp 1 vid Flodamotet (trafikåtgärder)
- Planprogram Södra Floda (riktlinjer för framtida detaljplaner, ca 1000 nya bostäder + kommunal service)
- Ändring till kommunalt huvudmannaskap i Floda (kommunen tar över vägar/natur/park; möjliggör vägbreddning och nya gång- och cykelvägar)
Påverkan
För en bostadsköpare är den största påverkan att Floda sannolikt går mot ett mer urbant och serviceinriktat centrum samt en tydligare utveckling kring E20/Flodamotet. • Byggstörningar (kort–medellång sikt): Växthustomten/Örnevinges väg (upphandling av allmän plats/VA och GC-väg) och eventuella kommande byggstarter vid Floda torg kan innebära perioder med buller, byggtrafik, tillfälligt stök och ändrade framkomligheter. • Trafik och buller: Utbyggnad vid Flodamotet och planerna utmed Högavägen kan öka trafikflöden lokalt (särskilt vid motet och anslutande vägar). Samtidigt kan trafikåtgärder och nya bullerskydd (bullerplank i närområdet) förbättra ljudmiljön på vissa stråk. För boende nära större vägar kan både förbättringar (styrd trafik, bulleråtgärder) och försämringar (mer rörelse och verksamheter) bli aktuella beroende på exakt läge. • Service, trygghet och värdeutveckling (medellång–lång sikt): Floda torg-projektet med fler bostäder, trygghetsboende och större livsmedelshandel talar för bättre vardagsservice, mer liv och rörelse och potentiellt stärkt attraktivitet i centrum. Södra Floda (ca 1000 bostäder) kan på sikt ge underlag för mer kommunal service, men också öka belastning på vägnät och skolor innan kapacitet byggts ut. • Gång/cykel och kommunal standard: Kommunalt huvudmannaskap och satsningar på gång- och cykelvägar kan ge bättre drift/underhåll, tydligare ansvar och successivt förbättrad trafiksäkerhet. Nackdelen kan vara fler ombyggnationer av gator (breddning/omgestaltning) och förändrade park-/naturkanter. • Osäkerheter att bevaka: Växthustomtens detaljplan är överklagad (tidsplan och slutlig utformning kan ändras). Högavägen/Flodamotet är i tidigt skede med samråd först 2027, vilket innebär att omfattning och påverkan kan justeras under processen.
Pågående och planerade byggprojekt
Karta som visar beviljade bygglov, detaljplaneprocesser samt kommunala ärenden om byggande och planering.
Källa: kommunkartan
Brott och trygghet
Klar
Hur är tryggheten och kriminaliteten i området?
Trygghet
Lerums kommun uppvisar en mycket positiv trygghetsutveckling och klättrade till en sjätteplats av 290 kommuner i SKR:s nationella trygghetsmätning 2024. För att ytterligare stärka den upplevda tryggheten lokalt planeras kamerabevakning utanför skoltid vid Alléskolan och Torpskolan i Floda för att förebygga skadegörelse. Dessutom har kommunen nyligen utökat trygghetsarbetet med ordningsvakter som vid behov kan sättas in i Floda och andra kransorter.
Organiserad brottslighet
Polisen har under den senaste tiden uttryckt oro över en ökad närvaro av kriminella nätverk i Lerums kommun, där man bland annat varnat för risken att unga rekryteras. Rapporter pekar på att lokala ungdomsgäng försöker muta in områden, vilket skapar risk för våldsamma konflikter och misshandel. Historiskt har området även drabbats av grova brott med kopplingar till mc-gäng och organiserad brottslighet, exempelvis en uppmärksammad kidnappning i Floda 2019.
Öppna drogscener
Det finns i dagsläget inga platser i Floda som polisen officiellt klassificerar som en öppen drogscen. Lokalpolisen har dock varnat för att ungdomsgäng rör sig i kommunen i syfte att etablera försäljning av narkotika. För att stävja droganvändningen och försäljningen bland unga arbetar kommunen aktivt med förebyggande insatser, däribland sök med narkotikahundar på lokala skolor.
Händelser från polis och kommun
Karta som visar händelser från polisen och kommunala ärenden rörande brott och trygghet.
Källa: kommunkartan
Kollektivtrafik
Klar
Hur fungerar kollektivtrafiken och kommer den att ändras?
Viktiga linjer
Restider till knutpunkter (Mån 08:00)
Sammanfattning
Fastigheten har ett utmärkt pendlingsläge precis vid Floda station, varifrån Västtågen vanligtvis tar dig till Göteborg på 26 minuter. Fram till slutet av 2027 påverkas dock tågtrafiken kraftigt av omfattande banarbeten med reducerad turtäthet och periodvisa ersättningsbussar som följd, men det lokala resandet täcks väl upp av busslinjer och kommunen planerar för en framtida tillgänglighetsanpassning av stationsområdet.
Nyheter och Status
Trafikverketgenomförettomfattandekapacitets-ochunderhållsarbetepåVästrastambananmellanGöteborgochAlingsåsunder2025–2027[2.14]. Detta påverkar tågtrafiken kraftigt med perioder av enkelspårsdrift och helt indragen spårtrafik som då ersätts med buss.
Bussen trafikerar sträckan mellan Floda och Lerum och verkar operera normalt enligt ordinarie tidtabell. Trycket på bussen kan temporärt öka under de perioder då pendeltågstrafiken är reducerad.
Buss 533 förbinder Floda med bland annat Tollered och rullar på utan kända störningar. Längs sträckan pågår regional planering för en ny, helt separerad gång- och cykelbana för att öka oskyddade trafikanters säkerhet.
Källor
Infrastrukturprojekt och kollektivtrafik
Karta som visar pågående projekt från Trafikverket samt kommunala och regionala ärenden om trafik och kollektivtrafik.
Källa: kommunkartan
Renovering och underhåll
Klar
Vilka behov av renovering och underhåll har huset?
Underhåll och renoveringsbehov som kan behövas inom 3 år.
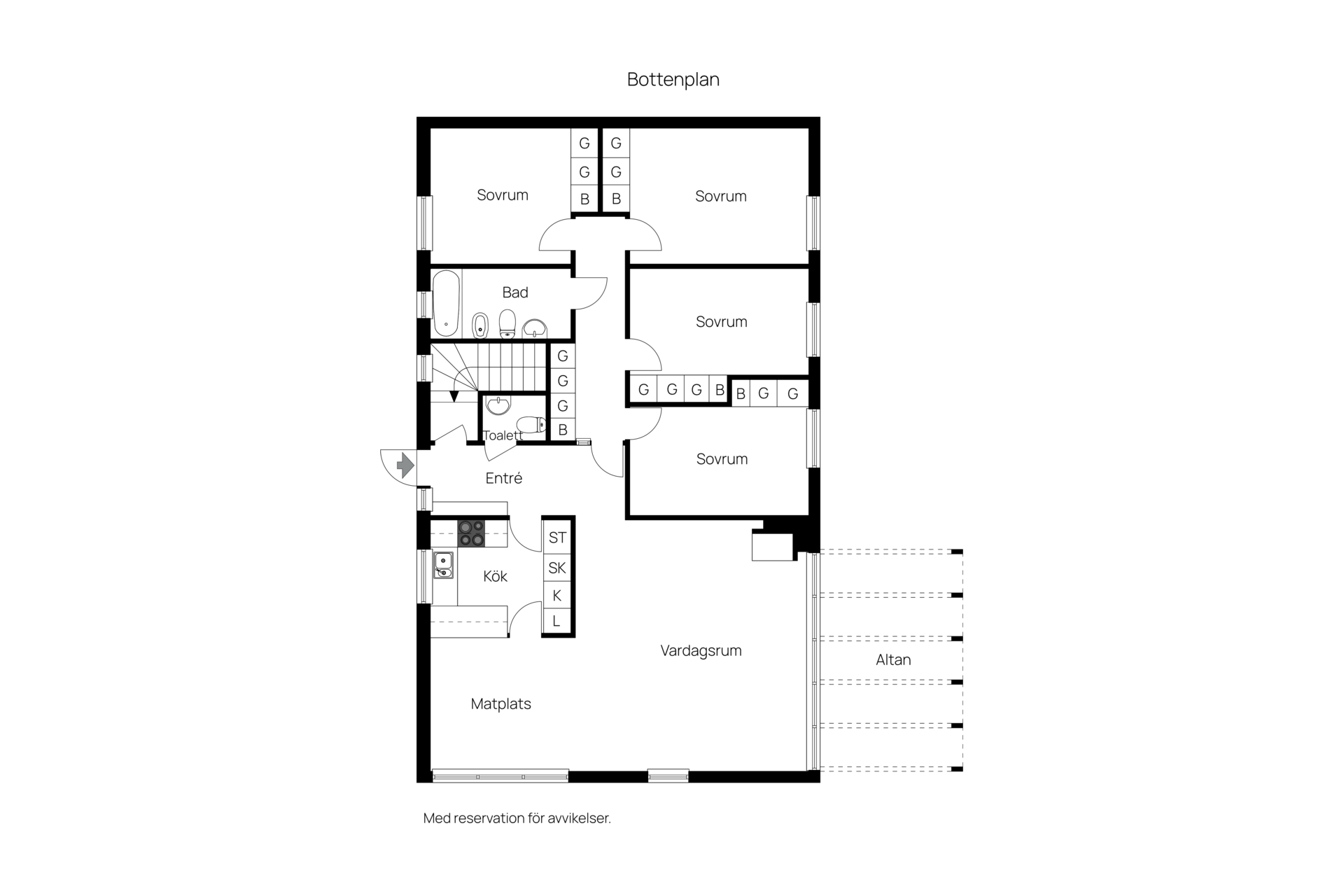
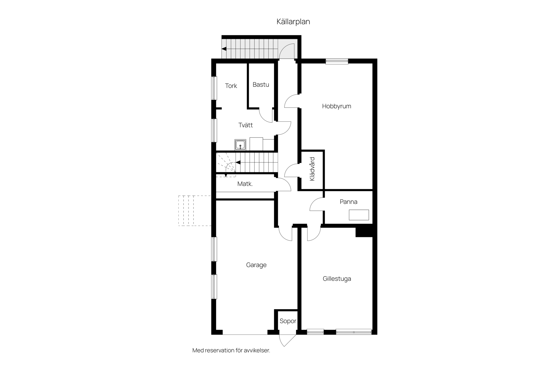
Byggnadens skick
Huset (1963/64) har flera tydliga åldersrelaterade risker: fuktpåverkan i källarväggar kopplat till stopp i takavvattning samt mikrobiell påväxt på vinden som behöver utredas och åtgärdas. Våtutrymmet på entréplan är tekniskt avskrivet och VA/eldelar bedöms delvis ha nått teknisk livslängd (gjutjärnsbrunnar, äldre rör, ojordade uttag och elcentral utan jordfelsbrytare). Taket ser i grunden ok ut enligt stickprov men har mossa/lav och murstocken har omfogningsbehov; även trädetaljer/fönster/dörrar har målningsbehov.
Saknad information
Vi saknar detaljer om bergvärmepumpens installationsår/modell och status (energideklarationen antyder hög ålder), samt ålder/utförande för tvätt/dusch i källaren (tätskikt/golvbrunn). Vi saknar även sotnings- och brandskyddsprotokoll för murad skorsten/ev. eldstad samt uppgifter om radonmätning (ej utförd). För exakt kostnad behövs även uppgift om antal fönster/dörrar och omfattning av träpanel på fasad.
Underhåll
Taktvätt
Orsak: Besiktningen noterar mossa och lav på betongpannor.
Beskrivning: Tvätt av tak (170.0 m²)
Nästa steg: Be om offert på taktvätt och be entreprenör bedöma om pannor/underlagstak har skador.
Kostnad*: 14 450 kr
Fasadmålning
Orsak: Träfasad och övriga målade träkonstruktioner har målningsbehov enligt besiktning.
Beskrivning: Tvätt och målning av fasad (60.0 m²)
Nästa steg: Kontrollera särskilt utsatta lägen (takfot, nederkant panel) och ta in offert.
Kostnad*: 19 500 kr
Fönsteråtermålning
Orsak: Samtliga fönster av trä har målnings/behandlingsbehov enligt besiktning.
Beskrivning: Målning av 12 fönster
Nästa steg: Räkna antal fönster på visning och kontrollera nederstycken/karmar efter mjukt trä.
Kostnad*: 33 000 kr
Ytterdörrmålning
Orsak: Samtliga dörrar av trä har målnings/behandlingsbehov enligt besiktning.
Beskrivning: Målning av 2 ytterdörrar
Nästa steg: Kontrollera dörrens nederkant och täthet samt ta in offert.
Kostnad*: 6 000 kr
Radonmätning
Orsak: Radonmätning är inte utförd enligt energideklarationen.
Beskrivning: Mätning av radon
Nästa steg: Beställ spårfilmsdosor och följ instruktioner; begär ev. tidigare mätprotokoll av säljaren.
Kostnad*: 1 500 kr
| Namn | Orsak | Beskrivning | Nästa steg | Kostnad* |
|---|---|---|---|---|
| Taktvätt | Besiktningen noterar mossa och lav på betongpannor. | Tvätt av tak (170.0 m²) | Be om offert på taktvätt och be entreprenör bedöma om pannor/underlagstak har skador. | 14 450 kr |
| Fasadmålning | Träfasad och övriga målade träkonstruktioner har målningsbehov enligt besiktning. | Tvätt och målning av fasad (60.0 m²) | Kontrollera särskilt utsatta lägen (takfot, nederkant panel) och ta in offert. | 19 500 kr |
| Fönsteråtermålning | Samtliga fönster av trä har målnings/behandlingsbehov enligt besiktning. | Målning av 12 fönster | Räkna antal fönster på visning och kontrollera nederstycken/karmar efter mjukt trä. | 33 000 kr |
| Ytterdörrmålning | Samtliga dörrar av trä har målnings/behandlingsbehov enligt besiktning. | Målning av 2 ytterdörrar | Kontrollera dörrens nederkant och täthet samt ta in offert. | 6 000 kr |
| Radonmätning | Radonmätning är inte utförd enligt energideklarationen. | Mätning av radon | Beställ spårfilmsdosor och följ instruktioner; begär ev. tidigare mätprotokoll av säljaren. | 1 500 kr |
* Uppskattad kostnad (efter ROT) av ett typiskt arbete i samma omfattning, kan påverkas kraftigt av materialval och standard.
Renovering
Byte av hängrännor och stuprör
Orsak: Stopp i takavvattningen noterades och vatten kunde inte ta sig vidare i markanslutningen; kopplas till fukt i källarväggar.
Beskrivning: Byte av hängrännor (50.0 m) och stuprör (18.0 m)
Nästa steg: Spola/rensa stuprör och dagvatten, filma vid behov och ta in offert på åtgärd/byte.
Kostnad*: 34 000 kr
Källardränering
Orsak: Dränering uppges utförd 2003 (ca 23 år) och besiktningen visar fukt i källarväggar samt rekommenderar kontroll av dräneringens funktion.
Beskrivning: Dränering av källaren (50.0 m)
Nästa steg: Börja med spolning/filmning och fuktutredning; om brister bekräftas, ta in offert på dräneringsåtgärd.
Kostnad*: 187 500 kr
Badrumsrenovering
Orsak: WC/Bad på entréplan är äldre och tekniskt avskrivet enligt besiktning (riskanalys 3:2).
Beskrivning: Renovering av standard badrum (6.0 m²) inkl. nytt tätskikt, entréplan
Nästa steg: Ta reda på renoveringsår och begär kvalitetsdokument; ta in offert från behörig våtrumsentreprenör.
Kostnad*: 202 000 kr
Renovering av tvättstuga
Orsak: Tvätt/dusch i källaren har fuktindikationer i ytterväggar och källare är riskkonstruktion; VA bedöms delvis ha nått teknisk livslängd.
Beskrivning: Renovering av standard tvättstuga (10.0 m²) inkl. tätskikt och brunn
Nästa steg: Kontrollera golvbrunnstyp/ålder och om tätskikt finns; ta in fackman för fukt- och våtrumsbedömning.
Kostnad*: 190 000 kr
Skorstensrenovering
Orsak: Murstocken har omfogningsbehov enligt besiktning.
Beskrivning: Renovering av 1 skorsten(ar)/rökkanal(er), åtgärd: murning/puts
Nästa steg: Ta in skorstensfejarmästare/murare för bedömning och offert samt kontrollera om eldstad används.
Kostnad*: 35 000 kr
Byte av elcentral
Orsak: Elcentralen är gängsäkrad (porslin) och anläggningen saknar jordfelsbrytare enligt el-kontrollen.
Beskrivning: Byte till modern elcentral med automatsäkringar och jordfelsbrytare (okänd)
Nästa steg: Ta in behörig elektriker för offert och kontroll av jordning/uttag i hela huset.
Kostnad*: 20 000 kr
Omdragning av el
Orsak: Delar av elen är från byggnadsåret, ojordade uttag förekommer och teknisk livslängd för elinstallationer är i praktiken passerad för 1963-delar.
Beskrivning: Total elrenovering: Nya ledningar, jordade uttag och ny central (125.0 m², 8 rum)
Nästa steg: Låt elektriker göra statusbesiktning (inkl. provning) och prioritera kök/våtutrymmen och källare.
Kostnad*: 200 000 kr
Krypgrundsrenovering
Orsak: Mikrobiell påväxt på vind noterad; takfotsventilation och isolering behöver justeras och orsak ska utredas (riskanalys 3:4).
Beskrivning: Renovering av krypgrund (125.0 m²)
Nästa steg: Beställ fukt-/vindutredning (RF-loggning) och offert på sanering samt injustering av ventilation/täthet mot bostad.
Kostnad*: 150 000 kr
Byte av bergvärmepump
Orsak: Energideklarationen anger att bergvärmepumpens ålder sannolikt innebär att den på sikt behöver bytas (teknisk livslängd ca 15 år).
Beskrivning: 1:1-byte av 1 bergvärmepump(er) med befintligt borrhål och värmesystem
Nästa steg: Ta fram modell/årtal och servicehistorik; be värmepumpsinstallatör om statuskontroll och offert.
Kostnad*: 120 000 kr
| Namn | Orsak | Beskrivning | Nästa steg | Kostnad* |
|---|---|---|---|---|
| Byte av hängrännor och stuprör | Stopp i takavvattningen noterades och vatten kunde inte ta sig vidare i markanslutningen; kopplas till fukt i källarväggar. | Byte av hängrännor (50.0 m) och stuprör (18.0 m) | Spola/rensa stuprör och dagvatten, filma vid behov och ta in offert på åtgärd/byte. | 34 000 kr |
| Källardränering | Dränering uppges utförd 2003 (ca 23 år) och besiktningen visar fukt i källarväggar samt rekommenderar kontroll av dräneringens funktion. | Dränering av källaren (50.0 m) | Börja med spolning/filmning och fuktutredning; om brister bekräftas, ta in offert på dräneringsåtgärd. | 187 500 kr |
| Badrumsrenovering | WC/Bad på entréplan är äldre och tekniskt avskrivet enligt besiktning (riskanalys 3:2). | Renovering av standard badrum (6.0 m²) inkl. nytt tätskikt, entréplan | Ta reda på renoveringsår och begär kvalitetsdokument; ta in offert från behörig våtrumsentreprenör. | 202 000 kr |
| Renovering av tvättstuga | Tvätt/dusch i källaren har fuktindikationer i ytterväggar och källare är riskkonstruktion; VA bedöms delvis ha nått teknisk livslängd. | Renovering av standard tvättstuga (10.0 m²) inkl. tätskikt och brunn | Kontrollera golvbrunnstyp/ålder och om tätskikt finns; ta in fackman för fukt- och våtrumsbedömning. | 190 000 kr |
| Skorstensrenovering | Murstocken har omfogningsbehov enligt besiktning. | Renovering av 1 skorsten(ar)/rökkanal(er), åtgärd: murning/puts | Ta in skorstensfejarmästare/murare för bedömning och offert samt kontrollera om eldstad används. | 35 000 kr |
| Byte av elcentral | Elcentralen är gängsäkrad (porslin) och anläggningen saknar jordfelsbrytare enligt el-kontrollen. | Byte till modern elcentral med automatsäkringar och jordfelsbrytare (okänd) | Ta in behörig elektriker för offert och kontroll av jordning/uttag i hela huset. | 20 000 kr |
| Omdragning av el | Delar av elen är från byggnadsåret, ojordade uttag förekommer och teknisk livslängd för elinstallationer är i praktiken passerad för 1963-delar. | Total elrenovering: Nya ledningar, jordade uttag och ny central (125.0 m², 8 rum) | Låt elektriker göra statusbesiktning (inkl. provning) och prioritera kök/våtutrymmen och källare. | 200 000 kr |
| Krypgrundsrenovering | Mikrobiell påväxt på vind noterad; takfotsventilation och isolering behöver justeras och orsak ska utredas (riskanalys 3:4). | Renovering av krypgrund (125.0 m²) | Beställ fukt-/vindutredning (RF-loggning) och offert på sanering samt injustering av ventilation/täthet mot bostad. | 150 000 kr |
| Byte av bergvärmepump | Energideklarationen anger att bergvärmepumpens ålder sannolikt innebär att den på sikt behöver bytas (teknisk livslängd ca 15 år). | 1:1-byte av 1 bergvärmepump(er) med befintligt borrhål och värmesystem | Ta fram modell/årtal och servicehistorik; be värmepumpsinstallatör om statuskontroll och offert. | 120 000 kr |
* Uppskattad kostnad (efter ROT) av ett typiskt arbete i samma omfattning, kan påverkas kraftigt av materialval och standard.
Ut- och tillbyggnad
Klar
Vad får du bygga på fastigheten?
Översikt
Enligt gällande byggnadsplan får en fjärdedel av tomten bebyggas, vilket på denna tomt om 1431 kvm ger en total byggrätt på ca 357 kvm. Då nuvarande bottenplatta är runt 125 kvm finns en betydande outnyttjad byggrätt. Det finns därmed gott om utrymme för att bygga ut huset i markplan, anlägga en utomhuspool eller bygga ett fristående garage. Planen tillåter även byggnation i två våningar med en maximal höjd på 7,6 meter, vilket möjliggör en påbyggnad av ett extra våningsplan.
Begränsningar och risker
Huset är klätt i tegel vilket innebär både estetiska och konstruktionsmässiga utmaningar för att få till en harmonisk tillbyggnad eller påbyggnad. Huvudregeln i planen är att byggnader ska placeras minst 4,5 meter från tomtgräns, och avståndet till granntomt måste vara minst hälften av byggnadens höjd. Eventuella prickmarkeringar på tomten kan styra var nya byggnader eller utbyggnader får placeras.
Saknad information
För en helt exakt bedömning av den återstående byggrätten behöver ytan för befintliga skärmtak, uterum och carport mätas upp då dessa räknas in i byggnadsarean. Det framgår inte heller helt tydligt från kartutsnittet var prickmarkeringar (byggnadsfria zoner) löper över just denna fastighet.
Möjliga ut- och tillbyggnader
| Namn | Beskrivning | Nästa steg | Kostnad |
|---|---|---|---|
| Tillbyggnad | Tillbyggnad av huset (40.0 m²) | Kontakta en arkitekt för att ta fram skisser och därefter skicka in en bygglovsansökan till Lerums kommun. | 1 260 000 kr |
| Påbyggnad av nytt våningsplan | Påbyggnad med en extra våning (100.0 m²), ombyggnadskomplexitet: hög | Konsultera en konstruktör för att säkerställa bottenvåningens bärighet samt en arkitekt för fasadanpassning inför bygglov. | 5 805 000 kr |
| Anläggning av pool | Bygga 32.0 m² pool | Ta in offerter från poolbyggare och stäm av med kommunen ifall schaktningen på tomten kräver marklov. | 820 000 kr |
| Fristående garage | Fristående garage (35.0 m²), isolerat och uppvärmt | Utred lämplig placering med hänsyn till 4,5 meters-regeln från tomtgräns och ansök om bygglov hos Lerums kommun. | 770 000 kr |
Tillbyggnad
Beskrivning: Tillbyggnad av huset (40.0 m²)
Nästa steg: Kontakta en arkitekt för att ta fram skisser och därefter skicka in en bygglovsansökan till Lerums kommun.
Kostnad: 1 260 000 kr
Påbyggnad av nytt våningsplan
Beskrivning: Påbyggnad med en extra våning (100.0 m²), ombyggnadskomplexitet: hög
Nästa steg: Konsultera en konstruktör för att säkerställa bottenvåningens bärighet samt en arkitekt för fasadanpassning inför bygglov.
Kostnad: 5 805 000 kr
Anläggning av pool
Beskrivning: Bygga 32.0 m² pool
Nästa steg: Ta in offerter från poolbyggare och stäm av med kommunen ifall schaktningen på tomten kräver marklov.
Kostnad: 820 000 kr
Fristående garage
Beskrivning: Fristående garage (35.0 m²), isolerat och uppvärmt
Nästa steg: Utred lämplig placering med hänsyn till 4,5 meters-regeln från tomtgräns och ansök om bygglov hos Lerums kommun.
Kostnad: 770 000 kr