Husanalys
Objekt
Klar
Se annonsen på
Dokument
2/8 hittade
Dom här dokumenten har vi identifierat och använder för analysen. Du kan manuellt ladda upp dokument som saknas så gör vi om analysen.
Prospekt
Energi
Besiktning
Eldning
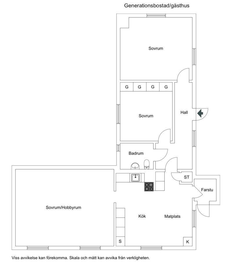
Planlösning
Detaljplan
Demografi
Misslyckades
Vilka är det som bor i området?
Analysen tog för lång tid och avbröts
Buller
Klar
Hur är ljudmiljön vid fastigheten?
Bullerkarta
Uppskattade bullernivåer
50
dB utomhus
25
dB inomhus
stängda fönster
38
dB inomhus
öppna fönster
Beskrivning
Fastigheten är belägen i ett tyst landsbygdsområde omgivet av skog och åkermark. Den huvudsakliga ljudkällan är sporadisk trafik på den mindre väg som passerar strax söder om byggnaden. Den generella bullernivån är låg och boendemiljön upplevs sannolikt som mycket lugn, utan betydande störningar för de boende.
Bullernivåerna är uppskattningar baserade på satellitbilder och kan avvika från faktiska mätningar. Värden anges i LAeq (ekvivalent ljudnivå).
Luftkvalitet
Klar
Hur är luftkvaliteten vid fastigheten?
Mycket bra luftkvalitet
De modellerade årsmedelhalterna av NO₂, PM10 och PM2,5 ligger tydligt under 50% av dagens EU-gränsvärden, vilket indikerar mycket god luftkvalitet vid adressen sett över ett år.
Luftkvalitetskartor (2030-direktivet)
NO₂ (Kvävedioxid)
PM10 (Partiklar)
PM2,5 (Fina partiklar)
Föroreningsnivåer (årsmedelvärden)
NO₂ (Kvävedioxid)
1,4 µg/m³
Nuvarande gränsvärde: 40,0 µg/m³
3,4% av gränsvärdet
2030 gränsvärde: 20,0 µg/m³
6,9% av gränsvärdet
PM10 (Partiklar)
6,1 µg/m³
Nuvarande gränsvärde: 40,0 µg/m³
15,2% av gränsvärdet
2030 gränsvärde: 20,0 µg/m³
30,5% av gränsvärdet
PM2,5 (Fina partiklar)
3,7 µg/m³
Nuvarande gränsvärde: 25,0 µg/m³
15,0% av gränsvärdet
2030 gränsvärde: 10,0 µg/m³
37,4% av gränsvärdet
Hälsopåverkan
Vid dessa årsmedelhalter är den långsiktiga risken för luftföroreningsrelaterade besvär generellt låg för de flesta. Känsliga personer (t.ex. astma/KOL, hjärt-kärlsjukdom) kan ändå uppleva symtom vid enstaka dagar med högre partikelhalter, men nivåerna tyder inte på en generellt belastad miljö.
Jämförelse med 2030-direktivet
Platsen klarar även de kommande (strängare) EU-nivåerna för 2030 med god marginal för alla tre föroreningar. Närmast 2030-gränsen ligger PM2,5 (cirka 37% av 10 µg/m³), vilket fortfarande är tydligt under riktvärdet.
Rekommendationer
Ingen särskild åtgärd krävs utifrån årsmedelvärdena. För extra försiktighet kan känsliga personer undvika intensiv utomhusträning nära trafikerade vägar under torra vårdagar (vägdamm/PM10) och vid episoder med rök från vedeldning. Observera att detta är modellerade värden från SMHI och att lokala förhållanden (t.ex. närhet till enskild väg, dubbdäcksslitage, vedeldning, topografi) kan göra att faktiska halter varierar, särskilt timme–dag.
Data från SMHI:s nationella modellering av luftkvalitet. Värden är modellerade årsmedelvärden och kan avvika från faktiska mätningar. Källa: natmodluft.smhi.se
Översvämning
Klar
Vad är risken att huset drabbas av översvämning?
Skyfallskarta
Risknivå
LågMaximalt vattendjup
0,1 m
vid 100-årsregn
Analys
Fastigheten ligger på en svag höjd och avrinningsanalysen visar att vatten från omgivande kullar och fält rinner bort från byggnaderna. Inga betydande vattenansamlingar förväntas vid byggnadernas läge vid extrema väderhändelser.
Rekommendationer
Regelbunden översyn av dränering och dagvattensystem runt byggnaderna rekommenderas för att hantera lokala ytvattenansamlingar.
Analysen baseras på topografiska data och satellitbilder. Lokala dräneringssystem och markförhållanden kan påverka den faktiska risken.
Byggprojekt i området
Klar
Vad byggs eller planeras i närheten som påverkar fastigheten?
Sammanfattning
I närområdet kring Sofieberg 1 & 2 (inom ca 650 m) syns främst småskalig bostadsutveckling och en omvandling av befintlig byggnad till fritidsboende. Det handlar inte om några större detaljplaneprocesser eller flerbostadsprojekt i den givna listan, utan enstaka bygglov som sannolikt påverkar området begränsat och lokalt.
Viktiga projekt
- Nybyggnad av enbostadshus på Skravsta 6:7 (bygglov beviljat – förekommer två gånger, troligen komplettering/nytt beslut för samma projekt)
- Ändrad användning: magasin → fritidshus med tillbyggnad och installation av VA på Lista-Åsby 5:1 och Lista-Åsby Gård 2
Påverkan
För en bostadsköpare innebär detta främst: - Begränsad påverkan på trafik och buller: Ett nytt enbostadshus och ett fritidshus ger normalt endast marginellt ökad biltrafik och liten påverkan på bullernivåer. - Tillfälliga byggstörningar: Under byggtiden kan viss byggtrafik, buller och damm förekomma, men i regel under en avgränsad period och i liten skala. - Små förändringar i karaktär och insyn: Nybyggnation av en villa kan påverka närmiljön genom ändrade siktlinjer/insyn för närmaste grannar, men påverkan blir normalt lokal. - Serviceutbud: Projekten är för små för att i sig driva fram ny service (skola, handel, kollektivtrafik), men de kan indikera en viss fortsatt inflyttning/utveckling i området. Sammanfattningsvis pekar listan på ett stabilt, småskaligt utvecklingstryck snarare än större omdaning. Den största praktiska effekten för boendemiljön är sannolikt kortvariga byggstörningar snarare än långsiktiga förändringar.
Pågående och planerade byggprojekt
Karta som visar beviljade bygglov, detaljplaneprocesser samt kommunala ärenden om byggande och planering.
Källa: kommunkartan
Brott och trygghet
Klar
Hur är tryggheten och kriminaliteten i området?
Trygghet
För adressen Sofieberg 1 & 2 finns inga lokala brottshändelser rapporterade, vilket indikerar att det är ett lugnt område utanför stadskärnan. Övergripande för Eskilstuna kommun visar lägesrapporter från 2024 och 2025 på en positiv trygghetsutveckling där det grova våldet har minskat. Polisens och kommunens samverkansarbete har gett effekt och utvecklingen i flera tidigare utsatta stadsdelar går nu i en positiv riktning.
Organiserad brottslighet
Ingen specifik information om organiserad brottslighet eller gängaktivitet har hittats för adressens direkta närområde. Eskilstuna som kommun har haft stora utmaningar med nätverkskriminalitet, men antalet skjutningar har minskat kraftigt från 29 under år 2022 till 5 under 2024. Polisen bedömer att lyckade beslag och riktade insatser mot individer i riskzonen är avgörande orsaker till att det grova våldet har kunnat dämpas.
Öppna drogscener
Det saknas helt rapporter om öppna drogscener eller öppen droghandel i det lokala området kring Sofieberg. På en bredare kommunal nivå i Eskilstuna bedrivs dock ett intensivt samverkansarbete för att motverka den narkotikahandel som göder de kriminella nätverken. Under 2024 lanserades bland annat en ny, bred kampanj och handlingsplan i samverkan med polisen för att trycka tillbaka den öppna narkotikakonsumtionen i stadens mer centrala delar.
Källor
Händelser från polis och kommun
Karta som visar händelser från polisen och kommunala ärenden rörande brott och trygghet.
Källa: kommunkartan
Kollektivtrafik
Klar
Hur fungerar kollektivtrafiken och kommer den att ändras?
Viktiga linjer
Inga specifika linjer identifierades.
Restider till knutpunkter (Mån 08:00)
Sammanfattning
Kollektivtrafiken kring Sofieberg förlitar sig främst på busslinjerna 206 och 208 som nås via en kort promenad till hållplatsen Jäder Kyrka. Dessa erbjuder en direkt och smidig förbindelse in till Eskilstuna centrum på omkring en halvtimme, vilket är betydligt snabbare än tidigare uppskattningar. Från Eskilstuna centralstation erbjuds sedan utmärkta vidare anslutningar via Mälartåg till storstadsregioner som Stockholm, Örebro och Västerås, vilket möjliggör en bred regional arbetsmarknad för de boende.
Nyheter och Status
Kommunen har analyserat busslinjen och adderat en ny kvällstur för vardagar [2.9]. Samtidigt har vissa turer (exempelvis mellan Kjula och Barva) ersatts med anropsstyrd trafik på grund av lokala brister i infrastrukturen.
Inga större trafikförändringar eller driftstörningar har rapporterats för linjen, och den rullar på enligt sin ordinarie tidtabell in mot Eskilstuna. Sörmlandstrafiken lanserar även billigare sommarkort vilket kan gynna yngre pendlare på sträckan.
Trafiken slår resenärsrekord och utökas med fler avgångar under helger och vardagar. Systemet är dock stundtals pressat med förseningar på grund av underhållsbehov och snäva tidtabeller. VR Sverige planeras ta över som ny operatör under slutet av 2026.
Källor
Infrastrukturprojekt och kollektivtrafik
Karta som visar pågående projekt från Trafikverket samt kommunala och regionala ärenden om trafik och kollektivtrafik.
Källa: kommunkartan
Renovering och underhåll
Klar
Vilka behov av renovering och underhåll har huset?
- Besiktningsprotokoll saknas, ladda upp det för en bättre analys
Underhåll och renoveringsbehov som kan behövas inom 3 år.
Byggnadens skick
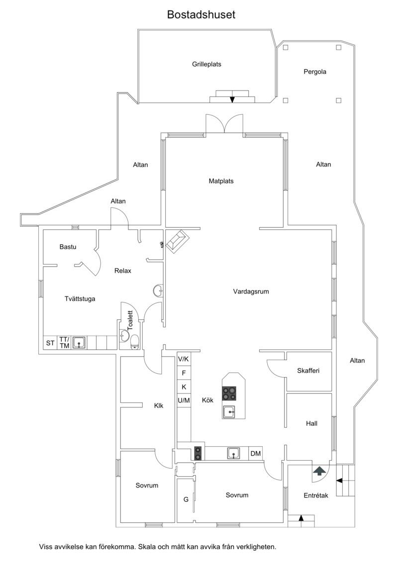
Mangårdsbyggnaden är i huvudsak om-/tillbyggd som nyproduktion 2008 och ser välhållen ut på bilderna, med bergvärme och moderna våtutrymmen. Den största tekniska risken i materialet gäller generationsbostaden (1930/1970-tal) där VA inte är i bruk och där krypgrund/liten källardel kan innebära fukt- och renoveringsbehov. Äldre ekonomibyggnader (ladugård/loge) har sannolikt löpande underhållsbehov, men omfattningen går inte att bedöma utan protokoll.
Saknad information
Besiktningsprotokoll saknas, vilket gör att risker kring fukt (krypgrund/källardel), tak, el och våtutrymmen inte kan verifieras. Vi saknar även sotnings- och brandskyddsprotokoll för eldstäder/skorstenar samt uppgifter om ålder/status på luft/luft-värmepumpar, vitvaror och elcentraler. För generationsbostaden saknas tydlig information om skick på badrum/kök, elinstallationer samt vad som krävs för att få VA i drift och godkänt.
Underhåll
Sotning av eldstad och skorsten
Orsak: Det finns vedspis och täljstenskamin som används men sotningsprotokoll saknas.
Beskrivning: Sotning av 2 rökkanal(er) för eldstad/skorsten
Nästa steg: Kontakta kommunens sotningsentreprenör och be om senaste intervall/protokoll samt boka vid behov.
Kostnad*: 1 300 kr
Brandskyddskontroll eldstad och skorsten
Orsak: Eldstäder finns och används men brandskyddsprotokoll saknas.
Beskrivning: Brandskyddskontroll av 2 eldstad(er) och tillhörande rökkanaler
Nästa steg: Kontakta sotningsentreprenör/kommun och kontrollera när brandskyddskontroll senast gjordes.
Kostnad*: 5 000 kr
Radonmätning
Orsak: Energideklarationen anger att radonmätning inte är utförd (inomhusluft).
Beskrivning: Mätning av radon
Nästa steg: Beställ radondosor och följ mätperiod/placering enligt instruktion.
Kostnad*: 1 500 kr
| Namn | Orsak | Beskrivning | Nästa steg | Kostnad* |
|---|---|---|---|---|
| Sotning av eldstad och skorsten | Det finns vedspis och täljstenskamin som används men sotningsprotokoll saknas. | Sotning av 2 rökkanal(er) för eldstad/skorsten | Kontakta kommunens sotningsentreprenör och be om senaste intervall/protokoll samt boka vid behov. | 1 300 kr |
| Brandskyddskontroll eldstad och skorsten | Eldstäder finns och används men brandskyddsprotokoll saknas. | Brandskyddskontroll av 2 eldstad(er) och tillhörande rökkanaler | Kontakta sotningsentreprenör/kommun och kontrollera när brandskyddskontroll senast gjordes. | 5 000 kr |
| Radonmätning | Energideklarationen anger att radonmätning inte är utförd (inomhusluft). | Mätning av radon | Beställ radondosor och följ mätperiod/placering enligt instruktion. | 1 500 kr |
* Uppskattad kostnad (efter ROT) av ett typiskt arbete i samma omfattning, kan påverkas kraftigt av materialval och standard.
Renovering
Krypgrundsrenovering
Orsak: Generationsbostaden har krypgrund och är i äldre skick; utan besiktning är fuktrisk och behov av avfuktning/åtgärder osäkert men vanligt.
Beskrivning: Renovering av krypgrund (93.0 m²)
Nästa steg: Beställ fuktmätning och okulär kontroll (lukt, mikrobiell påväxt, träfukt) i krypgrund/källardel.
Kostnad*: 111 600 kr
Källardränering
Orsak: Generationsbostaden har en liten källardel och är äldre; dränering/fuktisolering kan vara förbrukad om den inte är åtgärdad.
Beskrivning: Dränering av källaren (12.0 m)
Nästa steg: Kontrollera källardelen på visning (lukt, saltutfällningar, fuktfläckar) och begär uppgift om ev. tidigare dränering.
Kostnad*: 45 000 kr
Badrumsrenovering
Orsak: Generationsbostaden (1930/1970-tal) beskrivs som i äldre skick och utan uppgift om renoveringsår för badrum; teknisk livslängd kan vara passerad.
Beskrivning: Renovering av standard badrum (5.0 m²) inkl. nytt tätskikt, generationsbostad
Nästa steg: Fråga säljaren om renoveringsår och begär kvalitetsdokument; kontrollera golvbrunnstyp, sprickor och lukt på visning.
Kostnad*: 180 000 kr
Omdragning av el
Orsak: Generationsbostaden är äldre och elinstallationernas ålder/status framgår inte; risk för äldre kablage/jordning.
Beskrivning: Total elrenovering: Nya ledningar, jordade uttag och ny central (93.0 m², 5 rum)
Nästa steg: Be om elbesiktningsprotokoll eller låt elektriker kontrollera elcentral, jordfelsbrytare och jordade uttag.
Kostnad*: 155 200 kr
Byte av luft/luft-värmepump
Orsak: Generationsbostaden och gästhus har luft/luft-värmepump men ålder framgår inte; teknisk livslängd är ofta ca 8 år.
Beskrivning: 1:1-byte av 1 luft/luft-värmepump(er)
Nästa steg: Kontrollera installationsår/servicehistorik och provkör värme/kyla på visning.
Kostnad*: 20 000 kr
Byte av bergvärmepump
Orsak: Bergvärmeanläggning Nibe -08 med ny pump inuti -24; kvarvarande delar/kringutrustning kan fortfarande vara äldre och bör följas upp.
Beskrivning: 1:1-byte av 1 bergvärmepump(er) med befintligt borrhål och värmesystem
Nästa steg: Begär dokumentation på bytet 2024 och kontrollera garanti, driftlarm och serviceintervall.
Kostnad*: 120 000 kr
Byte av varmvattenberedare
Orsak: Maskinhallen har extra varmvattenberedare ca 500 liter men ålder framgår inte; varmvattenberedare har ofta ca 20 års livslängd.
Beskrivning: 1:1-byte av 1 varmvattenberedare i befintligt system
Nästa steg: Kontrollera fabrikat/årsmodell i teknikrum och leta efter tecken på läckage/korrosion.
Kostnad*: 15 000 kr
| Namn | Orsak | Beskrivning | Nästa steg | Kostnad* |
|---|---|---|---|---|
| Krypgrundsrenovering | Generationsbostaden har krypgrund och är i äldre skick; utan besiktning är fuktrisk och behov av avfuktning/åtgärder osäkert men vanligt. | Renovering av krypgrund (93.0 m²) | Beställ fuktmätning och okulär kontroll (lukt, mikrobiell påväxt, träfukt) i krypgrund/källardel. | 111 600 kr |
| Källardränering | Generationsbostaden har en liten källardel och är äldre; dränering/fuktisolering kan vara förbrukad om den inte är åtgärdad. | Dränering av källaren (12.0 m) | Kontrollera källardelen på visning (lukt, saltutfällningar, fuktfläckar) och begär uppgift om ev. tidigare dränering. | 45 000 kr |
| Badrumsrenovering | Generationsbostaden (1930/1970-tal) beskrivs som i äldre skick och utan uppgift om renoveringsår för badrum; teknisk livslängd kan vara passerad. | Renovering av standard badrum (5.0 m²) inkl. nytt tätskikt, generationsbostad | Fråga säljaren om renoveringsår och begär kvalitetsdokument; kontrollera golvbrunnstyp, sprickor och lukt på visning. | 180 000 kr |
| Omdragning av el | Generationsbostaden är äldre och elinstallationernas ålder/status framgår inte; risk för äldre kablage/jordning. | Total elrenovering: Nya ledningar, jordade uttag och ny central (93.0 m², 5 rum) | Be om elbesiktningsprotokoll eller låt elektriker kontrollera elcentral, jordfelsbrytare och jordade uttag. | 155 200 kr |
| Byte av luft/luft-värmepump | Generationsbostaden och gästhus har luft/luft-värmepump men ålder framgår inte; teknisk livslängd är ofta ca 8 år. | 1:1-byte av 1 luft/luft-värmepump(er) | Kontrollera installationsår/servicehistorik och provkör värme/kyla på visning. | 20 000 kr |
| Byte av bergvärmepump | Bergvärmeanläggning Nibe -08 med ny pump inuti -24; kvarvarande delar/kringutrustning kan fortfarande vara äldre och bör följas upp. | 1:1-byte av 1 bergvärmepump(er) med befintligt borrhål och värmesystem | Begär dokumentation på bytet 2024 och kontrollera garanti, driftlarm och serviceintervall. | 120 000 kr |
| Byte av varmvattenberedare | Maskinhallen har extra varmvattenberedare ca 500 liter men ålder framgår inte; varmvattenberedare har ofta ca 20 års livslängd. | 1:1-byte av 1 varmvattenberedare i befintligt system | Kontrollera fabrikat/årsmodell i teknikrum och leta efter tecken på läckage/korrosion. | 15 000 kr |
* Uppskattad kostnad (efter ROT) av ett typiskt arbete i samma omfattning, kan påverkas kraftigt av materialval och standard.
Ut- och tillbyggnad
Misslyckades
Vad får du bygga på fastigheten?
Vi har inte hittat en plankarta, vilket krävs för att genomföra analysen. Ladda upp filen som en PDF för att försöka igen. Pröva att hitta detaljplanen hos Eskilstuna. Länk: https://www.eskilstuna.se/bygga-bo-och-miljo/bygga-och-planera/stadsplanering/gallande-detaljplaner Om planen inte är digitaliserad kan du behöva kontakta kommunen.