Husanalys
Objekt
Klar
Dokument
3/8 hittade
Dom här dokumenten har vi identifierat och använder för analysen. Du kan manuellt ladda upp dokument som saknas så gör vi om analysen.
Demografi
Klar
Vilka är det som bor i området?
Vilka är det som bor i området? Vi har analyserat 348 hushåll i närområdet.
Hushåll
Boende
25,0%
I Sverige består 48,6% hushåll av en vuxen
70,4%
I Sverige bor 45,5% hushåll i en parrelation
50,6%
I Sverige har 28,7% hushåll minst ett barn
5,7%
I Sverige hyr 29,9% hushåll sitt boende
0,0%
I Sverige äger 20,1% hushåll bostadsrätt
92,2%
I Sverige har 47,3% hushåll äganderätt
Inkomst
Andel av hushåll som klassas som låginkomstagare, under medelinkomstagare, över medelinkomstagare eller höginkomstagare.
Personer
Demografi
50,1%
I Sverige har 46,7% studerat efter gymnasiet
85,1%
I Sverige har 79,7% 20-65 år en anställning
15,1%
I Sverige är 27,2% födda utrikes eller har två föräldrar födda utrikes
Ålder
Andel personer i ålderskategorier under 25 år, 25-45 år, 45-65 år och över 65 år.
Politik
I senaste riksdagsvalet röstade man Borgerligt.
Riksdagsvalet
Buller
Klar
Hur är ljudmiljön vid fastigheten?
Bullerkarta
Uppskattade bullernivåer
53
dB utomhus
28
dB inomhus
stängda fönster
40
dB inomhus
öppna fönster
Beskrivning
Huvudsaklig bullerkälla är den närliggande motorvägen (E20) norr om fastigheten samt lokal trafik på Floda allé och den närliggande rondellen. Området är i övrigt ett lugnt bostadsområde, men trafikbuller kan vara hörbart, särskilt utomhus eller vid öppna fönster.
Bullernivåerna är uppskattningar baserade på satellitbilder och kan avvika från faktiska mätningar. Värden anges i LAeq (ekvivalent ljudnivå).
Luftkvalitet
Klar
Hur är luftkvaliteten vid fastigheten?
Mycket bra luftkvalitet
Luftkvaliteten vid adressen är mycket bra utifrån SMHI:s modellerade årsmedelvärden. Samtliga föroreningar ligger tydligt under 50% av dagens EU-gränsvärden och även under de kommande (strängare) 2030-nivåerna.
Luftkvalitetskartor (2030-direktivet)
NO₂ (Kvävedioxid)
PM10 (Partiklar)
PM2,5 (Fina partiklar)
Föroreningsnivåer (årsmedelvärden)
NO₂ (Kvävedioxid)
3,5 µg/m³
Nuvarande gränsvärde: 40,0 µg/m³
8,7% av gränsvärdet
2030 gränsvärde: 20,0 µg/m³
17,4% av gränsvärdet
PM10 (Partiklar)
9,0 µg/m³
Nuvarande gränsvärde: 40,0 µg/m³
22,5% av gränsvärdet
2030 gränsvärde: 20,0 µg/m³
45,0% av gränsvärdet
PM2,5 (Fina partiklar)
5,9 µg/m³
Nuvarande gränsvärde: 25,0 µg/m³
23,8% av gränsvärdet
2030 gränsvärde: 10,0 µg/m³
59,4% av gränsvärdet
Hälsopåverkan
De modellerade nivåerna av NO₂, PM10 och PM2,5 är låga, vilket generellt innebär liten risk för luftvägsbesvär kopplade till långvarig exponering för dessa föroreningar. Känsliga grupper (t.ex. astma/KOL, hjärt-kärlsjukdom) kan ändå uppleva besvär vid enstaka dagar med högre partikelhalter, men årsmedelnivåerna tyder på en gynnsam boendemiljö.
Jämförelse med 2030-direktivet
Platsen klarar även de kommande 2030-gränsvärdena för alla tre föroreningar. Närmast 2030-nivån ligger PM2,5 (cirka 59% av 10 µg/m³), vilket speglar att en stor del av de fina partiklarna ofta kommer från regional bakgrund (långväga transport) snarare än lokala källor.
Data från SMHI:s nationella modellering av luftkvalitet. Värden är modellerade årsmedelvärden och kan avvika från faktiska mätningar. Källa: natmodluft.smhi.se
Översvämning
Klar
Vad är risken att huset drabbas av översvämning?
Skyfallskarta
Risknivå
LågMaximalt vattendjup
0,05 m
vid 100-årsregn
Analys
Fastigheten är belägen på en sluttning där marknivån sjunker från nordost mot sydväst. Topografiska analyser och flödesmodeller visar att ytvatten vid extrema skyfall huvudsakligen rinner förbi och bort från fastigheten, ned mot lägre liggande områden i väster (nära motorvägen). Fastigheten ligger utanför de zoner som identifierats ha risk för översvämning vid ett 100-årsregn, vilket indikerar att risken för stående vatten på tomten är minimal.
Rekommendationer
Eftersom översvämningsrisken bedöms som låg behövs inga omfattande översvämningsskydd. Det rekommenderas dock alltid att säkerställa god lokal avrinning genom att hålla hängrännor och stuprör fria samt att kontrollera att marken närmast husgrunden lutar bort från byggnaden.
Analysen baseras på topografiska data och satellitbilder. Lokala dräneringssystem och markförhållanden kan påverka den faktiska risken.
Byggprojekt i området
Klar
Vad byggs eller planeras i närheten som påverkar fastigheten?
Sammanfattning
Runt Floda allé 25 pågår flera större stadsutvecklingsspår som är relevanta för en bostadsköpare: (1) en tydlig förtätning och centrumutveckling med nya bostäder och mer handel/service (Floda torg samt Växthustomten), (2) en långsiktig expansion söderut med ett planprogram för cirka 1 000 nya bostäder (Södra Floda), samt (3) förändringar i trafik- och gatustruktur kopplat till Flodamotet/Högavägen och kommunalt övertagande av vägar/allmän plats (huvudmannaskap), inklusive nya/bättre gång- och cykelkopplingar. På kort sikt märks också genomförandeskede kring Växthustomten (upphandling av allmän plats/VA och GC-väg) och ombyggnation vid Flodamotet (etapp 1). Mindre enskilda bygglov (tillbyggnader, fasadändringar, enstaka småhus) bedöms ha begränsad påverkan jämfört med dessa större projekt.
Viktiga projekt
- Floda torg – ca 140 nya bostäder + utökad livsmedelshandel/centrumfunktioner
- Växthustomten – omvandling från verksamhetsmark till bostäder (även förskola/äldreboende i planinriktning), utbyggnad av allmän plats/VA och ny gång- och cykelväg längs Örnevinges väg (upphandling beslutad)
- Södra Floda – planprogram för långsiktig utbyggnad med ca 1 000 bostäder och kommunal service (samråd bedöms kunna ske under våren)
- Högavägen/Flodamotet – detaljplanestart för bostäder och verksamheter samt utveckling av motet; ombyggnation Flodamotet etapp 1
- Ändring till kommunalt huvudmannaskap i Floda – kommunen tar över vägar/allmän plats och kan bredda vägar samt bygga nya GC-vägar
- Mjörnprojektet – planering inför samråd och öppet hus (kan påverka vatten-/strandnära utveckling och rekreationsmiljöer beroende på innehåll)
Påverkan
För en boendemiljö nära Floda allé innebär projekten sannolikt en mer urban och serviceinriktad utveckling inom gång-/cykelavstånd, men också periodvis byggstörningar. • Byggstörningar (1–5 år): Växthustomten och arbeten vid Flodamotet kan ge ökad byggtrafik, buller och tillfälligt stök, särskilt eftersom flera åtgärder ligger inom ca 300–500 m. Uppställning av containrar (tidsbegränsat lov till 2030) vid Örnevinges väg kan också bidra till ett mer ”arbetsplatsnära” intryck under en längre period om området inte snabbt omvandlas. • Trafik, buller och luft: Utveckling vid Flodamotet/Högavägen (bostäder + bred verksamhetsmix som handel/hotell/lager/restaurang) kan öka trafikflöden och aktivitet. Samtidigt kan ombyggnation av motet och nya gång- och cykelvägar förbättra trafiksäkerhet och tillgänglighet. Beviljade bullerplank i närheten tyder på att bullerfrågan är aktuell och kan både signalera befintlig störning och att åtgärder vidtas. • Service och attraktivitet: Floda torg-projektet (ca 140 bostäder och större livsmedelsbutik/aktiva bottenplan) kan stärka centrumutbud, trygghet och stadsliv, vilket ofta är positivt för boendevärde – men kan också innebära mer rörelse, leveranser och kvällsaktivitet nära centrum. • Långsiktig förändring av karaktär: Södra Floda (ca 1 000 bostäder) är ett större tillväxtsteg som på sikt kan ge bättre underlag för skolor, kollektivtrafik och service, men också mer trafik och förändrad småortskaraktär. Hur naturvärden bevaras och hur kopplingar till befintliga Floda löses blir centralt. • Kommunalt huvudmannaskap (vägar/allmän plats): På sikt kan detta ge jämnare standard, bättre vinterväghållning och möjlighet till nya GC-stråk. Nackdelar kan vara fler ombyggnationer (breddning) och att vissa gaturum kan upplevas mer ”kommunalt” utformade. För en köpare är det också relevant att ansvar och framtida åtgärder blir tydligare och mer förutsägbara. Samlad bedömning: Området är på väg in i en tydlig utvecklingsfas med både förtätning och infrastruktursatsningar. Fördelarna är främst bättre service, fler bostadsalternativ och förbättrade gång-/cykelkopplingar; de största riskerna är ökad trafik/aktivitet kring motet samt byggstörningar under genomförandet, särskilt kopplat till Växthustomten och Flodamotet.
Pågående och planerade byggprojekt
Karta som visar beviljade bygglov, detaljplaneprocesser samt kommunala ärenden om byggande och planering.
Källa: kommunkartan
Brott och trygghet
Klar
Hur är tryggheten och kriminaliteten i området?
Trygghet
Invånarna i Floda upplever generellt en hög trygghet, men lokala trygghetsundersökningar visar att vårdslös moped- och A-traktorkörning har skapat viss lokal otrygghet. I närområdet kring bostaden rapporteras främst mindre händelser som trafikolyckor, samt att kommunen nyligen beslutat om kamerabevakning på den närliggande Alléskolans skolgård för att motverka skadegörelse efter skoltid. För att upprätthålla säkerheten sker en kontinuerlig samverkan mellan polis och kommun genom bland annat trygghetsvandringar.
Organiserad brottslighet
Det finns ingen information som tyder på att etablerade kriminella gäng har ett fast fäste i just Floda. Områdespolisen i Lerums kommun har dock uttryckt viss oro över en ökad rörlighet av personer med kopplingar till kriminella nätverk i närområdet. För att hantera detta bedriver polis, skola och socialtjänst ett aktivt preventivt arbete med syfte att förhindra att ungdomar rekryteras in i kriminalitet.
Öppna drogscener
Det finns inga kända eller officiellt klassificerade öppna drogscener i Floda eller i direkt anslutning till fastigheten. Polisen och kommunen har dock narkotikaförebyggande arbete som en prioriterad fråga, då man uppmärksammat att droger förekommer i vissa ungdomsmiljöer inom Lerums kommun. Det rör sig dock inte om någon öppen och systematisk gathandel med narkotika i detta bostadsområde.
Källor
Händelser från polis och kommun
Karta som visar händelser från polisen och kommunala ärenden rörande brott och trygghet.
Källa: kommunkartan
Kollektivtrafik
Klar
Hur fungerar kollektivtrafiken och kommer den att ändras?
Viktiga linjer
Restider till knutpunkter (Mån 08:00)
Sammanfattning
Fastigheten har ett mycket bra och centralt läge med gångavstånd till Floda station, som normalt sett erbjuder utmärkt pendling mot Göteborg och Alingsås. Fram till sommaren 2027 är dock tågtrafiken starkt påverkad av underhållsarbete på Västra stambanan, vilket innebär reducerade avgångar, inställda tåg och total bussersättning under sommaren 2026. Även om lokala busslinjer (531 och 533) opererar normalt, bör en framtida köpare förbereda sig på förlängda och mer krävande pendlingstider i närtid.
Nyheter och Status
TrafikverketgenomförettomfattandebanarbetepåVästrastambanan2025–2027, vilketledertillkraftigtreduceradkapacitetochförändradetider[1.4]. Under första halvan av 2026 råder enkelspårsdrift förbi Floda, och hela sommaren 2026 (22 juni–16 augusti) stängs all tågtrafik helt och ersätts med buss.
Busslinjen mellan Floda och Lerum rullar enligt ordinarie planering. Den kan uppleva ett ökat tryck när resenärer söker lokala alternativ under tågstoppen på stambanan, men har inga egna akuta driftstörningar inplanerade.
Linjen mellan Floda och Tollered trafikerar som vanligt. Dock riskerar pendlare som byter till tåg vid Floda station att få förlängda väntetider och missmatchande anslutningar till följd av tågtrafikens pågående restriktioner.
Infrastrukturprojekt och kollektivtrafik
Karta som visar pågående projekt från Trafikverket samt kommunala och regionala ärenden om trafik och kollektivtrafik.
Källa: kommunkartan
Renovering och underhåll
Klar
Vilka behov av renovering och underhåll har huset?
Underhåll och renoveringsbehov som kan behövas inom 3 år.
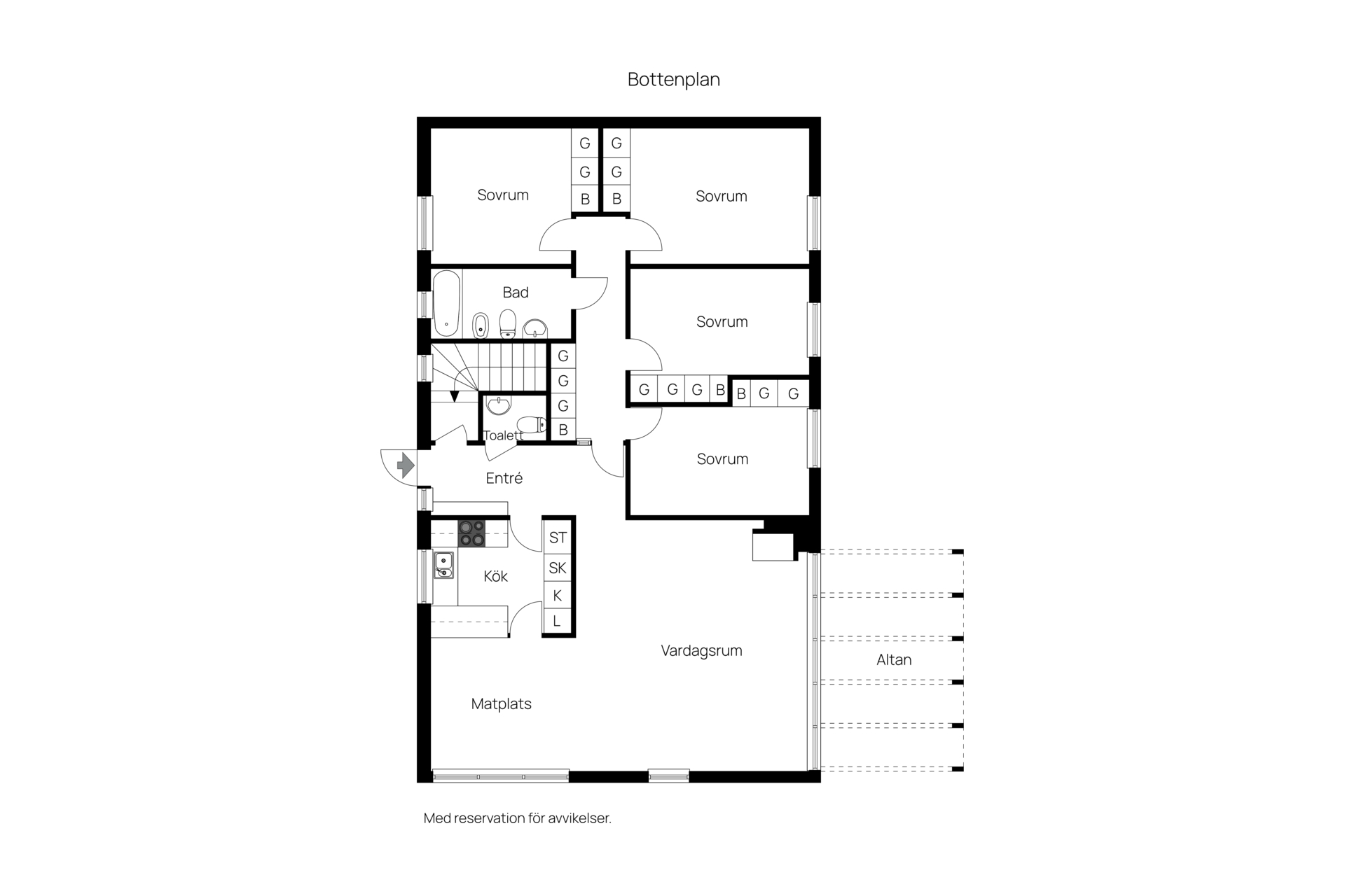
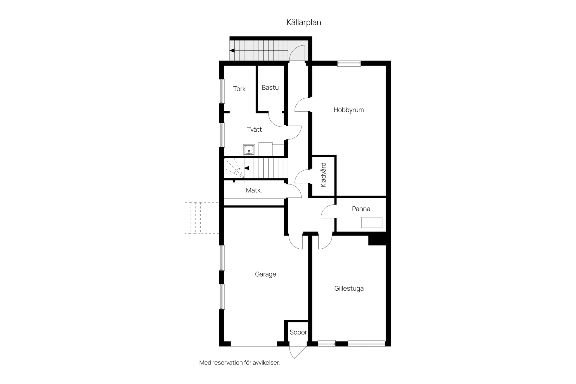
Byggnadens skick
Huset (1963/64) har flera åldersrelaterade risker: äldre el (proppskåp utan jordfelsbrytare och många ojordade uttag), tekniskt avskrivet badrum samt VA-delar/golvbrunnar i gjutjärn. Besiktningen visar fuktproblematik i källarens ytterväggar kopplat till stopp i takavvattningen samt mikrobiell påväxt på vind som behöver utredas och åtgärdas. Taket är omlagt 1992 och pappen bedömdes utan skador vid stickprov, men mossa/lav finns och murstocken har omfogningsbehov.
Saknad information
Vi saknar fullständig information om bergvärmepumpens ålder/servicehistorik (energideklarationen antyder att den är äldre) samt status på varmvattenberedare. Vi saknar även sotnings- och brandskyddsprotokoll för eldstad/skorsten och mer detaljer om badrummets utförande (tätskikt/golvbrunnstyp/renoveringsår). För dräneringen anges år 2003, men funktion och utförande (dagvatten, dränledning, inspektionsbrunnar) behöver verifieras p.g.a. fuktindikationer i källaren.
Underhåll
Taktvätt
Orsak: Besiktningen noterar mossa och lav på betongpannor.
Beskrivning: Tvätt av tak (180.0 m²)
Nästa steg: Be om offert och låt entreprenör bedöma om pannor behöver bytas lokalt i samband med tvätt.
Kostnad*: 15 300 kr
Fasadmålning
Orsak: Träfasad och övriga målade trädetaljer har målningsbehov enligt besiktningen.
Beskrivning: Tvätt och målning av fasad (40.0 m²)
Nästa steg: Kontrollera särskilt nederkanter, knutbrädor och anslutningar mot plåt/tegel och ta in offert.
Kostnad*: 13 000 kr
Fönsteråtermålning
Orsak: Samtliga fönster av trä har målnings/behandlingsbehov enligt besiktningen.
Beskrivning: Målning av 12 fönster
Nästa steg: Räkna antal fönster på visning och kontrollera rötskador i nederstycken innan offert.
Kostnad*: 33 000 kr
Ytterdörrmålning
Orsak: Trädörrar har målnings/behandlingsbehov enligt besiktningen.
Beskrivning: Målning av 2 ytterdörrar
Nästa steg: Kontrollera på plats om dörren tar i/är otät och ta in offert vid behov.
Kostnad*: 6 000 kr
Radonmätning
Orsak: Radonmätning är inte utförd enligt energideklarationen.
Beskrivning: Mätning av radon
Nästa steg: Beställ mätpaket och placera dosor enligt instruktion; följ upp med åtgärdsutredning om värden är höga.
Kostnad*: 1 500 kr
Sotning av eldstad och skorsten
Orsak: Sotningsprotokoll saknas och huset har murad skorsten.
Beskrivning: Sotning av 1 rökkanal(er) för eldstad/skorsten
Nästa steg: Fråga säljaren om antal eldstäder/rökkanaler och senaste sotning, annars boka via sotare.
Kostnad*: 650 kr
Brandskyddskontroll eldstad och skorsten
Orsak: Brandskyddsprotokoll saknas och murstocken har omfogningsbehov enligt besiktningen.
Beskrivning: Brandskyddskontroll av 1 eldstad(er) och tillhörande rökkanaler
Nästa steg: Boka kontroll och be om bedömning av murstockens skick och behov av åtgärd.
Kostnad*: 2 500 kr
| Namn | Orsak | Beskrivning | Nästa steg | Kostnad* |
|---|---|---|---|---|
| Taktvätt | Besiktningen noterar mossa och lav på betongpannor. | Tvätt av tak (180.0 m²) | Be om offert och låt entreprenör bedöma om pannor behöver bytas lokalt i samband med tvätt. | 15 300 kr |
| Fasadmålning | Träfasad och övriga målade trädetaljer har målningsbehov enligt besiktningen. | Tvätt och målning av fasad (40.0 m²) | Kontrollera särskilt nederkanter, knutbrädor och anslutningar mot plåt/tegel och ta in offert. | 13 000 kr |
| Fönsteråtermålning | Samtliga fönster av trä har målnings/behandlingsbehov enligt besiktningen. | Målning av 12 fönster | Räkna antal fönster på visning och kontrollera rötskador i nederstycken innan offert. | 33 000 kr |
| Ytterdörrmålning | Trädörrar har målnings/behandlingsbehov enligt besiktningen. | Målning av 2 ytterdörrar | Kontrollera på plats om dörren tar i/är otät och ta in offert vid behov. | 6 000 kr |
| Radonmätning | Radonmätning är inte utförd enligt energideklarationen. | Mätning av radon | Beställ mätpaket och placera dosor enligt instruktion; följ upp med åtgärdsutredning om värden är höga. | 1 500 kr |
| Sotning av eldstad och skorsten | Sotningsprotokoll saknas och huset har murad skorsten. | Sotning av 1 rökkanal(er) för eldstad/skorsten | Fråga säljaren om antal eldstäder/rökkanaler och senaste sotning, annars boka via sotare. | 650 kr |
| Brandskyddskontroll eldstad och skorsten | Brandskyddsprotokoll saknas och murstocken har omfogningsbehov enligt besiktningen. | Brandskyddskontroll av 1 eldstad(er) och tillhörande rökkanaler | Boka kontroll och be om bedömning av murstockens skick och behov av åtgärd. | 2 500 kr |
* Uppskattad kostnad (efter ROT) av ett typiskt arbete i samma omfattning, kan påverkas kraftigt av materialval och standard.
Renovering
Byte av hängrännor och stuprör
Orsak: Stopp i takavvattningen noterades och vatten kunde inte ta sig vidare i markanslutningen, med sannolikt samband till fukt i källarvägg.
Beskrivning: Byte av hängrännor (45.0 m) och stuprör (18.0 m)
Nästa steg: Spola/filma dagvattenledning och ta in offert på åtgärd/byte inklusive markanslutning.
Kostnad*: 31 500 kr
Källardränering
Orsak: Fukt uppmättes i källarens ytterväggar och besiktningen rekommenderar kontroll av dräneringens funktion; dränering uppges utförd 2003 (bör verifieras).
Beskrivning: Dränering av källaren (46.0 m)
Nästa steg: Beställ dräneringsfirma för statuskontroll (inspektionsbrunnar, spolning/filmning) och offert på åtgärd om brister hittas.
Kostnad*: 172 500 kr
Skorstensrenovering
Orsak: Murstocken har omfogningsbehov enligt besiktningen.
Beskrivning: Renovering av 1 skorsten(ar)/rökkanal(er), åtgärd: murning/puts
Nästa steg: Ta in skorstensfejarmästare/murare för bedömning av omfattning och offert.
Kostnad*: 35 000 kr
Badrumsrenovering
Orsak: WC/Bad på entréplan är äldre våtutrymme och tekniskt avskrivet enligt besiktningen.
Beskrivning: Renovering av standard badrum (6.0 m²) inkl. nytt tätskikt, entréplan
Nästa steg: Efterfråga renoveringsår/dokumentation och ta in offert; överväg fuktindikering/öppning vid rivning.
Kostnad*: 202 000 kr
Renovering av tvättstuga
Orsak: Tvätt/dusch i källare har fuktindikationer i ytterväggar och källare är riskkonstruktion enligt besiktningen.
Beskrivning: Renovering av standard tvättstuga (8.0 m²) inkl. tätskikt och brunn
Nästa steg: Kontrollera golv/väggmaterial (organiskt mot betong) och ta in våtrumsfirma för bedömning och offert.
Kostnad*: 162 000 kr
Byte av elcentral
Orsak: Elcentralen är gängsäkrad (porslin) och anläggningen saknar jordfelsbrytare enligt el-kontrollen.
Beskrivning: Byte till modern elcentral med automatsäkringar och jordfelsbrytare (okänd)
Nästa steg: Ta in behörig elektriker för offert och kontroll av skyddsjordning i samband med byte.
Kostnad*: 20 000 kr
Omdragning av el
Orsak: Viss el är från byggnadsåret, många uttag är ojordade och kablar/centraler närmar sig/har passerat teknisk livslängd (ca 45 år).
Beskrivning: Total elrenovering: Nya ledningar, jordade uttag och ny central (125.0 m², 7 rum)
Nästa steg: Be elektriker göra statusbesiktning (jordning, isolationsprov, belastning) och föreslå etappindelning.
Kostnad*: 200 000 kr
Byte av bergvärmepump
Orsak: Energideklarationen anger att bergvärmepumpens ålder sannolikt innebär att den på sikt behöver bytas (teknisk livslängd ca 15 år).
Beskrivning: 1:1-byte av 1 bergvärmepump(er) med befintligt borrhål och värmesystem
Nästa steg: Efterfråga installationsår/serviceprotokoll och ta in offert från värmepumpsinstallatör.
Kostnad*: 120 000 kr
Refurbishment av vind (åtgärd av mikrobiell påväxt och ventilation/isolering)
Orsak: Mikrobiell påväxt på vind noterades och takfotsventilation samt isolering behöver justeras enligt besiktningen.
Beskrivning: Utred orsak, sanera påväxt vid behov och justera isolering/takfotsventilation för att sänka fuktnivåer.
Nästa steg: Anlita fuktkonsult/vindspecialist för orsaksutredning och åtgärdsförslag med offert.
Kostnad*: Ej uppskattad
| Namn | Orsak | Beskrivning | Nästa steg | Kostnad* |
|---|---|---|---|---|
| Byte av hängrännor och stuprör | Stopp i takavvattningen noterades och vatten kunde inte ta sig vidare i markanslutningen, med sannolikt samband till fukt i källarvägg. | Byte av hängrännor (45.0 m) och stuprör (18.0 m) | Spola/filma dagvattenledning och ta in offert på åtgärd/byte inklusive markanslutning. | 31 500 kr |
| Källardränering | Fukt uppmättes i källarens ytterväggar och besiktningen rekommenderar kontroll av dräneringens funktion; dränering uppges utförd 2003 (bör verifieras). | Dränering av källaren (46.0 m) | Beställ dräneringsfirma för statuskontroll (inspektionsbrunnar, spolning/filmning) och offert på åtgärd om brister hittas. | 172 500 kr |
| Skorstensrenovering | Murstocken har omfogningsbehov enligt besiktningen. | Renovering av 1 skorsten(ar)/rökkanal(er), åtgärd: murning/puts | Ta in skorstensfejarmästare/murare för bedömning av omfattning och offert. | 35 000 kr |
| Badrumsrenovering | WC/Bad på entréplan är äldre våtutrymme och tekniskt avskrivet enligt besiktningen. | Renovering av standard badrum (6.0 m²) inkl. nytt tätskikt, entréplan | Efterfråga renoveringsår/dokumentation och ta in offert; överväg fuktindikering/öppning vid rivning. | 202 000 kr |
| Renovering av tvättstuga | Tvätt/dusch i källare har fuktindikationer i ytterväggar och källare är riskkonstruktion enligt besiktningen. | Renovering av standard tvättstuga (8.0 m²) inkl. tätskikt och brunn | Kontrollera golv/väggmaterial (organiskt mot betong) och ta in våtrumsfirma för bedömning och offert. | 162 000 kr |
| Byte av elcentral | Elcentralen är gängsäkrad (porslin) och anläggningen saknar jordfelsbrytare enligt el-kontrollen. | Byte till modern elcentral med automatsäkringar och jordfelsbrytare (okänd) | Ta in behörig elektriker för offert och kontroll av skyddsjordning i samband med byte. | 20 000 kr |
| Omdragning av el | Viss el är från byggnadsåret, många uttag är ojordade och kablar/centraler närmar sig/har passerat teknisk livslängd (ca 45 år). | Total elrenovering: Nya ledningar, jordade uttag och ny central (125.0 m², 7 rum) | Be elektriker göra statusbesiktning (jordning, isolationsprov, belastning) och föreslå etappindelning. | 200 000 kr |
| Byte av bergvärmepump | Energideklarationen anger att bergvärmepumpens ålder sannolikt innebär att den på sikt behöver bytas (teknisk livslängd ca 15 år). | 1:1-byte av 1 bergvärmepump(er) med befintligt borrhål och värmesystem | Efterfråga installationsår/serviceprotokoll och ta in offert från värmepumpsinstallatör. | 120 000 kr |
| Refurbishment av vind (åtgärd av mikrobiell påväxt och ventilation/isolering) | Mikrobiell påväxt på vind noterades och takfotsventilation samt isolering behöver justeras enligt besiktningen. | Utred orsak, sanera påväxt vid behov och justera isolering/takfotsventilation för att sänka fuktnivåer. | Anlita fuktkonsult/vindspecialist för orsaksutredning och åtgärdsförslag med offert. | Ej uppskattad |
* Uppskattad kostnad (efter ROT) av ett typiskt arbete i samma omfattning, kan påverkas kraftigt av materialval och standard.
Ut- och tillbyggnad
Misslyckades
Vad får du bygga på fastigheten?
Vi har inte hittat en plankarta, vilket krävs för att genomföra analysen. Ladda upp filen som en PDF för att försöka igen. Pröva att hitta detaljplanen hos Lerum. Länk: <https://lerum.se/bygga-bo-och-miljo/samhallsutveckling/oversiktsplanering-och-detaljplanering/hitta-gallande-detaljplaner> Om planen inte är digitaliserad kan du behöva kontakta kommunen.